







| 2012 | Rehabilitación Mercado para Centro Cultural. Portugalete (Bizcaia) |
PALACIO CIBELES
Biblioteca Boadilla
Vivienda Grandeza
Pabellón Gobierno U. Málaga
Torre Banco España
Ed. Departamental Elche
Balneario Fuensanta
CEIP en Camas
CEIP Burgos
Viviendas Juan Antón
TGSS Oviedo
Viviendas Dotacionales
Conservatorio Jaén
Campus Justicia de Valladolid
Reforma vivienda Mirador
Infografía Proyectos
Centro Estación Burgos
Instituto en Vitoria
Instituto en Bilbao
Rehabilitación AECID
Ampliación Colegio en Chiclana
Alojamientos Txurdinaga
Viviendas Izurtza
Pistas Pádel Majadahonda
Centro Visitantes Olivenza
Equipamiento Ronda
Bloque VPO Córdoba
Viviendas Sestao
Apartamentos Mayores Donostia
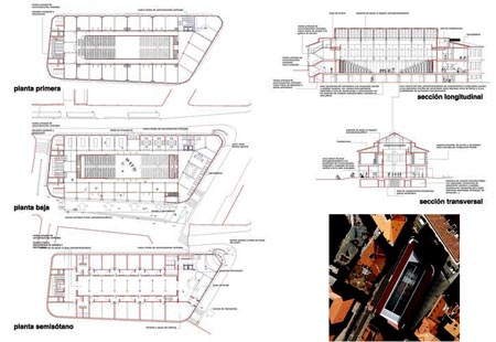
Centro Mercado Portugalete
Viviendas Hábitat Sostenible
Aeropuerto A Coruña
Torre de Control Girona
Exposición CentroCentro
2ª Fase Ayuntamiento Getafe
Muebles Palacio Cibeles
Centro Interpretación Ciudad
Centro Mayores Lavapiés
Urbanización Cibeles
Torre Control Menorca
Libro Palacio Cibeles
Aeropuerto Granada
Reforma P. Toros Getafe
Viviendas Aguas Vivas
Viviendas RCF Garrucha
Urbanización C/ Montalbán
Reforma Accesos UCIII
Decanato Justicia
Ampliación Rectorado Móstoles
4 Bloques en Garrucha
PERI UE 16 Garrucha
Colegio Mayor M. Zambrano
Reforma Foyer Teatro Real
Cafetería Teatro Real
Edificio Ortega y Gasset
Plan Especial Universidad
Politécnico de Burgos
Aeropuerto de Menorca
PAU Arroyo Culebro
Residencia Leganés
Biblioteca URJC
Campus La Milanera
Aeropuerto TFS - 3ª Fase
Rectorado URJC
Palacio de Villena
Campus de Móstoles
Ayuntamiento Getafe
Residencia Getafe
Vivienda El Escorial
Biblioteca La Latina
18 salas M. del Prado
Hospital del Rey. Burgos.
TEATRO REAL

Parador Jaén
Vivienda Cerceda
Jardines Ribera
Viv. Portuarios Gijón
Viv. Prefabricada M2
Viv.prefabricada M1
Comercio Variantes
CEIP Arroyo Encomienda
Residencia Estudiantes Burgos
Archivos Embajadores
Centro Salud Jerez
Centro Adultos Torrelavega
264 Viviendas Toledo
Aeropuerto Valladolid
Piscina Garrucha
PERI UE17 Garrucha
Balneario en Caldas
Hotel en Vera
Aeropuerto de Ibiza
Centro S.S. en Pozuelo
Plan Contra Incendios UCIII
Hospital de Ceuta
Filmoteca Española
Seguridad Social TF
Modelo Soterramiento
Libro Teatro Real
Cancillería Atenas
Bloque V.P.T. Pavones
Aeropuerto Barajas
Pza. Constitución Getafe
Cubiertas M. Prado
Expo 92 Arte y Cultura
Casa de América